In opdracht van Tarkett Nederland, als design manager, diverse vloerenplannen ontworpen.
Het 2D ontwerp werd altijd voorzien van een moodboard en afwerkstaat met toegepaste materialen
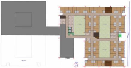
Project Vilente, de Klinkenberg (Ede)






In opdracht van Tarkett Nederland, als design manager, diverse vloerenplannen ontworpen.
Het 2D ontwerp werd altijd voorzien van een moodboard en afwerkstaat met toegepaste materialen





